The current of water, oil, gas phase separation is the automatic liquid discharge device for three-phase separation integrated, namely all separation liquid discharge process in one tank body complete. This form of three-phase separator is large volume and high cost, poor separation efficiency, high failure rate, repair is difficult. When the need to shut down repair effect of production. Split phase the company developed the automatic separation ofliquid discharging lever, is summarized in the existing basis of gas-liquid separation, water, oil separation facilitiesdesigned on the. Split three compartments separated now is carried out according to the separator gas traps -- -- -- -- the waste oil dewatering device for sewage tank program. The gas trap first installed in the separator, gas-liquid separation is realized, gas from the gas pipe output, liquid (water, oil) through the drain valve automaticallydischarged into the sewage tank (Gao Guan) and then the water oil separation by dehydration device, oil in thehigh tank, water is discharged into the sewage tank (low tank). Three phase separation of this form, itsmanufacturing cost is relatively low, stable and reliable operation, good separation effect, convenient repair. But this is only a loose combination, is the installation of natural gas drain combination valve and dewatering device in the operation of the system in the original into. Install drain valve and dewatering device has the respective bypass system, there are many obstacles, sometimes running is not smooth.
This product is based on summarizing the operation process, take long to perform, the drain valve, separator,dewatering device consisting of a large ski fast. The sled quickly overcome various obstacles in the installation ofdecentralized, each part to form an organic whole, will be the original extracorporeal circulation into the circulation in vivo. All of the implementation of factory production, so that the installation is very convenient.
Performance characteristics:
The gas-liquid separation effect is good, in the natural gas liquids can all separation, and automatic discharge;
The separation effect of water and oil well, oil in the water after deposition, after dehydration, water oil separation.The tank water was discharged into the sewage tank, oil purification rate above 95%, the oil content in water is less than 0.1%;
Operation barrier free, smooth smooth, low failure rate;
Convenient and simple to install;
Common bypass, simplified structure;
Settlement of slag sand in the separator, and can be discharged through the sewage pipe bypass system, to avoiddamage downstream equipment.
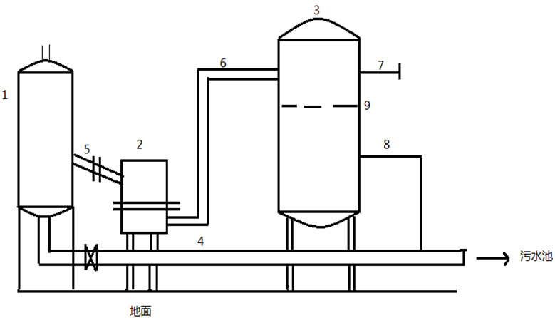
Structure diagram as follows:

1, separator
2, the drain valve
3, the dehydrator
4, the sewage pipe (with bypass)
5, a connecting pipe 1
6, a connecting pipe 2
7, the oil outlet pipe
8, the drainage tube
9, the water sealing control line





